大阪市東成区-緑橋駅周辺のお部屋探し(不動産情報)はハウスコムFC緑橋店にお任せ下さい♪
12.3万円 (管理費 10,000円)
情報更新日: 2026/04/14 次回更新日: 2026/04/28
12.3万円
(管理費 10,000円)
Osaka Metro長堀鶴見緑地線/松屋町駅 徒歩4分
Osaka Metro中央線/堺筋本町駅 徒歩8分
Osaka Metro長堀鶴見緑地線長堀橋駅 徒歩8分
大阪府大阪市中央区松屋町住吉33-1 他(地番)MAP
インターネット掲載物件に関わらず、大阪市内全域のお部屋探しが可能となっております!複数の業者にお問い合わせすることなく弊社にて正確な最新の空室状況をご確認させていただきます♪初期費用分割決算も可能となっており、ご都合に合わせて支払い回数も選べます!現地で待ち合わせ、営業時間外のご案内、保証人なし、法人契約、初期費用等その他何でもご相談下さい!インターネットに掲載していない非公開物件ご用意してます!
「スプランディッド本町グラン 7階 1LDK」の詳細は「ハウスコムFC緑橋店」まで。
部屋設備
アクセス・周辺環境
二人入居可 / システムキッチン / 給湯 / 洗髪洗面化粧台 / CATV / CSアンテナ / BSアンテナ / 宅配ボックス / 駐輪場 / バイク置き場 / 温水洗浄便座 / 浴室乾燥機 / 独立洗面台 / 防犯カメラ / 全居室収納 / クローゼット / シューズインクローゼット / 照明器具付き / ペット対応 / 水道(公営) / ガス(都市) / 排水(下水) / バス専用共同(専用) / バス・トイレ別 / シャワー / コンロ種別(ガス) / コンロ口数(二口) / エアコン / 室内洗濯機置き場 / オートロック / エレベータ / バルコニー / フローリング / internet対応(その他インターネット) / TVドアホン / インターネット利用料無料 / カード決済(初期費用) / 礼金なし / 敷金なし


コンビニ 134m / スーパー 619m / ドラッグストア 587m
スプランディッド本町グラン
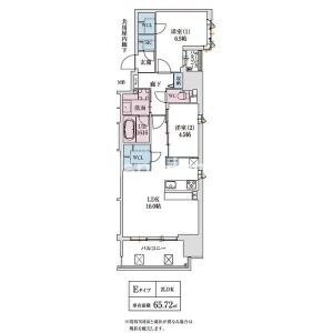
7階 / 1LDK / 30.78 m2「スプランディッド本町グラン 7階 1LDK」の詳細は「ハウスコムFC緑橋店」まで。
営業時間/9:30~19:00
| 物件名 | スプランディッド本町グラン | 賃料 | 12.3万円 |
|---|---|---|---|
| 管理費 | 10,000円 | 敷金 / 礼金 | - / - |
| 契約期間 | 2年 | ||
| 更新料 | - | 保証金 | - |
| 間取り | 1LDK | 専有面積 | 30.78 m2 |
| 所在 / 総階 | 7階 / 19階建て | 取引態様 | 仲介 |
| 賃借種別 | - | 方角 | 東 |
| 建物構造 | 鉄筋コンクリート造 | 築年数 | 2026/08 |
| 入居日 | 2026/08 下旬 | その他の費用 | アクト安心ライフ24/2年契約 16,500円 |
| 駐車場 | 空有 3.08万円 | 保険 | 2万円 |
| 保証会社 | 加入要 / 信和CM保証 / 初回契約時:50%、更新時:10,000円、月額:1,000円 | ||
| 物件名 | スプランディッド本町グラン |
|---|---|
| 賃料 | 12.3万円 |
| 管理費 | 10,000円 |
| 敷金 / 礼金 | - / - |
| 契約期間 | 2年 |
| 更新料 | - |
| 保証金 | - |
| 間取り | 1LDK |
| 専有面積 | 30.78 m2 |
| 賃借種別 | - |
| 方角 | 東 |
| 所在 / 総階 | 7階 / 19階建て |
| 取引態様 | 仲介 |
| 建物構造 | 鉄筋コンクリート造 |
| 築年数 | 2026/08 |
| 保証会社 | - |
| 保険 | 2万円 |
| 駐車場 | 空有 3.08万円 |
| 入居日 | 2026/08 下旬 |
| その他の費用 | アクト安心ライフ24/2年契約 16,500円 |
「スプランディッド本町グラン 7階 1LDK」の詳細は「ハウスコムFC緑橋店」まで。
営業時間/9:30~19:00
大阪市東成区・中央区を拠点に4店舗展開中です。緑橋駅エリアの新築・ファミリー向け・新婚向け・単身向け・学生向けのお部屋をご紹介しています。大阪市内中央線のお部屋探しは ハウスコムFC緑橋店にお任せください。生活保護の方向けの物件も得意としており、専門サイトもご用意しております。売買や賃貸管理もすべてご対応可能です。
関連サイト
ペット飼育可能な1LDKタイプのお部屋です♪設備も充実☆彡収納たっぷり!敷地内駐車場あります☆彡 / ペット可
インターネット掲載物件に関わらず、大阪市内全域のお部屋探しが可能となっております!複数の業者にお問い合わせすることなく弊社にて正確な最新の空室状況をご確認させていただきます♪初期費用分割決算も可能となっており、ご都合に合わせて支払い回数も選べます!現地で待ち合わせ、営業時間外のご案内、保証人なし、法人契約、初期費用等その他何でもご相談下さい!インターネットに掲載していない非公開物件ご用意してます!